Задвижка AVK ножевая шиберная с пневматическим приводом двойного действия применяется на трубопроводах, транспортирующих воду с температурой не более 70°C. Может применяться для систем со сточными водами. Размеры фланцев и отверстий: по ISO 7005-2 (EN 1092-2; 1997, DIN 2501).
Дополнительные принадлежности по запросу
- Корпус из нержавейки AISI 316.
- Прокладки из витона (макс. 260°C), тефлона (макс. 220°C).
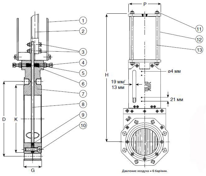
Устройство привода
- Штурвал, с невыдвижным штоком* (DN 50 - 600).
- Штурвал, с выдвижным штоком* (DN 50 - 600).
- Быстро закрывающий рычаг (DN 50 - 200).
- Исполнение выдвижного штока и фланца ISO предусматривает соединение с приводом* (DN 50 - 1500).
- Квадратная насадка штока для Т-образного ключа (DN 50 - 300).
- Электрический привод* (DN 50 - 1500).
*DN 50-300 модели с замкнутой рамой
Материалы
- Корпус - серый чугун GG-25 по DIN 1691.
- Покрытие - полиэфир устойчивый к ультрафиолетовым лучам, RAL 5017, мин. 150 μ.
- Шток, болт уплотнения, толкатель и шибер - нержавеющая сталь AISI 316.
- Гайка штока - бронза.
- Прокладка корпуса и сальник уплотнения - резина NBR.
- Стойка, подшипник - сталь st. 52.
- Болты, гайки - нержавеющая сталь AISI 316.
Устройство пневматического привода
- Корпус - алюминий.
- Приводная штанга - сталь st.52

