Шаровой кран Naval из нержавеющей стали - фланцевый, с редуктором

0 ОТЗЫВ-Ы / ДОБАВИТЬ ОТЗЫВ

Цены на стальные шаровые краны Naval - приварные

DN PN Цена с НДС
125 16 111 270 руб.
150 16 140 304 руб.
200 16 282 425 руб.
250 16 410 300 руб.

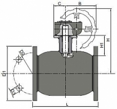
Габаритные размеры

DN PN Навал № LVI n:o L D1 D2 D3 H H1 B C KG
125 16 286 593 3763196 325 250 210 18 276 68 145 50 26
150 16 286 594 3763197 350 285 240 22 297 74 145 50 30
200 16 286 596 3763198 390 340 295 22 369 94 196 75 60
250 16 286 597 3763199 520 405 355 26 451 122 236 100 100

Фланцы: EN1092-1
Основные размеры: EN558-1 /p>

Отзыв
Оставить отзыв
Имя
E-mail
Текст комментария
Оценка для товара
Copyright MAXXmarketing Webdesigner GmbH