Краны шаровые стальные Vexve серия 101/G сварка/резьба с пробкой

0 ОТЗЫВ-Ы / ДОБАВИТЬ ОТЗЫВ

Цены на стальные краны Vexve 101/G

DN PN Цена с НДС
15 40 2 160 руб
20 40 2 352 руб
25 40 3 185руб

Технические характеристики

  • Корпус: Углеродистая сталь, EN 10217-2 P235GH (1.0345).
  • Шар: Нержавеющая сталь, EN X5CrNi18-10 (1.4301).
  • Шток: Нержавеющая сталь, EN X8CrNiS18-9 (1.4305).
  • Уплотнение шара: упрочненный PTFE.
  • Уплотнение штока: FPM.
  • Патрубки: Сталь, EN 10217-2 P235GH (1.0345).
  • Ручка: Оцинкованная.
  • Пробка: латунь.
  • Температура: от -30°C до 200°C.
Vexve 101/G стальной кран

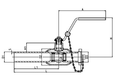
Размеры

Vexve 101/G стальной кран
DN PN Код D D1 D2 D3 S H H1 A L L1 Kv Кг
15 40 101 015/G 10 21,3 33,7 G 1/2 2 100 23 120 167 115 8 0,5
20 40 101 020/G 15 26,9 42,4 G 3/4 2,3 100 24 120 172 115 14 0,6
25 40 101 025/G 20 33,7 48,3 G 1 2,6 105 40 160 175 115 25 0,9
Отзыв
Оставить отзыв
Имя
E-mail
Текст комментария
Оценка для товара
Copyright MAXXmarketing Webdesigner GmbH