Краны высокого давления шаровые Ру 63-100 атм фланцевые

Краны высокого давления шаровые Ру 63-100 атм фланцевые

0 ОТЗЫВ-Ы / ДОБАВИТЬ ОТЗЫВ

20.00 р.

Краны высокого давления шаровые фланцевые 63-100 атм предназначены для использования на трубопроводе в качестве запорного органа.

  • Тип присоединения: фланцевый
  • Ду: 10; 15; 20; 25; 32; 40; 50; 65; 80; 100; 125; 150; 200; 250
  • Ру: 63; 80; 100
  • Пространственное положение: любое
  • Класс герметичности: А по ГОСТ Р 54808-2011
  • Перекрытие потока: осуществляется поворотом ручки на 90º

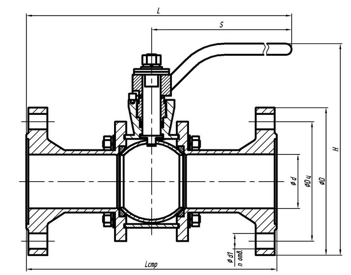
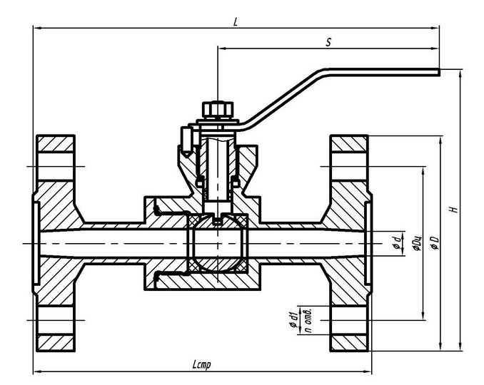
Габаритные и присоединительные размеры

Ду Lстр L S d D d1 n H Вес, кг
Ру 63
15 165 200 108 12 75 105 14 4 140 2,8
20 190 207 108 18 90 125 18 4 155 4,3
25 216 295 180 25 100 135 18 4 175 5,8
32 229 295 180 31 110 150 22 4 184 7,4
40* 241 430 300 37 125 165 22 4 200 10,8
40** 241 421 300 37 125 165 22 4 202
50 292 446 300 47 135 175 22 4 220 15,5
65 330 465 300 64 160 200 22 8 245
80 356 585 405 71 170 210 22 8 301 26,95
100 432 625 405 94 200 250 26 8 335 42,75
125 508 660 405 118 240 295 30 8 385
150 559 690 410 142 280 340 33 8 461 89,3
200 660 740 410 198 345 405 33 12 535
Ру 100
15 165 200 108 12 75 105 14 4 140
20 190 207 108 18 90 125 18 4 155
25 216 295 180 25 100 135 18 4 175 5,95
32 229 295 180 31 110 150 22 4 184
40* 241 430 300 37 125 165 22 4 200
40** 241 421 300 37 125 165 22 4 202
50 292 446 300 45 145 195 26 4 230 19,25
65 330 465 300 62 170 220 26 8 255
80 356 585 405 71 180 230 26 8 311 32,75
100 432 625 405 92 210 265 30 8 345 50,4
125 508 660 405 112 250 310 33 8 395
150 559 690 410 136 290 350 33 12 466
200 660 740 410 190 360 430 39 12 550

* Для двухсоставной конструкции крана
** Для трехсоставной конструкции крана
По желанию могут комплектоваться ответными фланцами по ГОСТ 12821-80, крепежом и прокладками. Возможно изготовление кранов с фланцами по зарубежным стандартам.

Варианты исполнений по материалу

Параметры Сталь 20 Сталь 09Г2С Сталь 12Х18Н10Т Сталь 10Х17Н13М2Т
Рабочая среда неагрессивные к проточной части крана среды(вода, масло, нефтепродукты, природный газ и прочее) агрессивные к проточной части крана среды (спирт, растворы кислот, щелочей и прочее)
пищевые продукты
Темература рабочей среды до 160°С (при использовании уплотнений и седел из Ф4)до 200°С (при использовании уплотнений и седел из Ф4К20)
Климатическое исполнение по ГОСТ 15150-69 УХЛ2 ХЛ1 УХЛ1 УХЛ1
Температура окружающей среды от -40° до +50° от -60° до +50° от -60° до +50° от -60° до +50°
Материал основных деталей
Корпусные детали/проточная часть (корпус, патрубки, фланцы, ниппели и пр.) Сталь 20 Сталь 09Г2С Сталь 12Х18Н10Т Сталь 10Х17Н13М2Т
Пробка Сталь 12Х18Н10Т Сталь 10Х17Н13М2Т
Шпиндель Сталь 20Х13 Сталь 14Х17Н2/12Х18Н10Т
Седла Фторопласт Ф-4 (Ф4К20 для кранов с температурой рабочей среды до 200°С)
Уплотнения Фторопласт Ф-4 (Ф4К20 для кранов с температурой рабочей среды до 200°С)

Обозначение

  • 11с01пф - сталь 20
  • 11лс01пф - сталь 09Г2С
  • 11нж01пф - нержавеющая сталь

Двухсоставная конструкция корпуса

Краны высокого давления шаровые РУ 63-100 атм фланцевые

Ду до 40 мм из стали 20 и стали 09Г2С
Ду до 32 мм из нержавеющей стали

Трехсоставная конструкция корпуса (стяжной на шпильках)

Краны высокого давления шаровые РУ 63-100 атм фланцевые

Ду свыше 40 мм из стали 20 и стали 09Г2С
Ду свыше 32 мм из нержавеющей стали

Отзыв
Оставить отзыв
Имя
E-mail
Текст комментария
Оценка для товара
Copyright MAXXmarketing Webdesigner GmbH